Office building structure CAD constructive block layout autocad file
Description
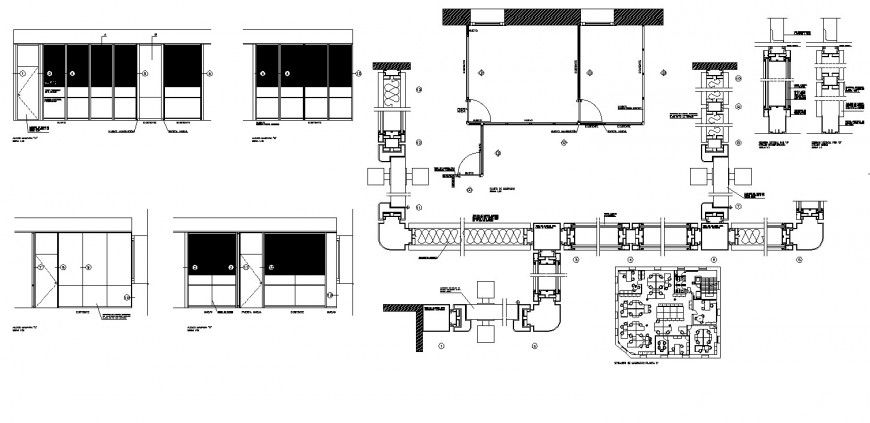
Office building structure CAD constructive block layout autocad file, plan view detail, wall and floorings detail, dimension detail, furniture detail, scale 1:25 detail, namings detail, door and window detail, hidden line detail, floor level detail, reinforced concrete cement (RCC) structure, numbering detail, sanitary toilet and wash-room detail, etc.
File Type:
DWG
File Size:
—
Category::
Interior Design
Sub Category::
Modern Office Interior Design
type:
Gold
Uploaded by:
Eiz
Luna

